Listed by Tara Roy of EXP Realty
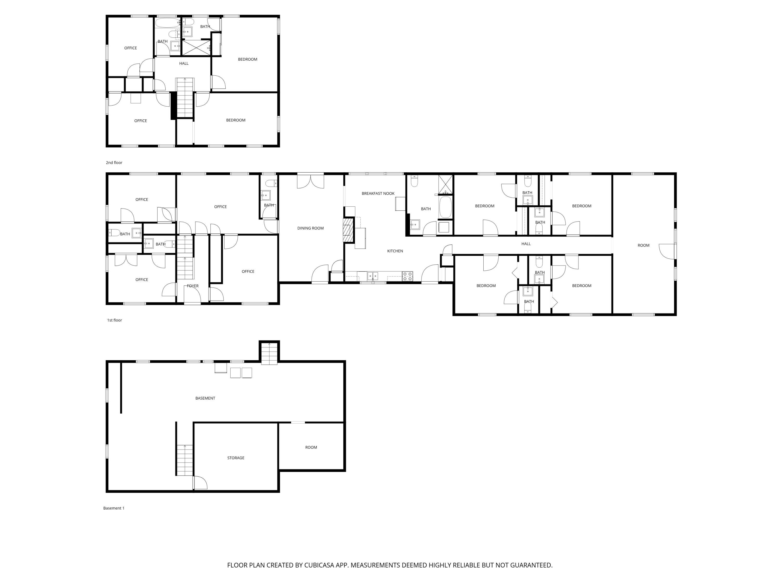
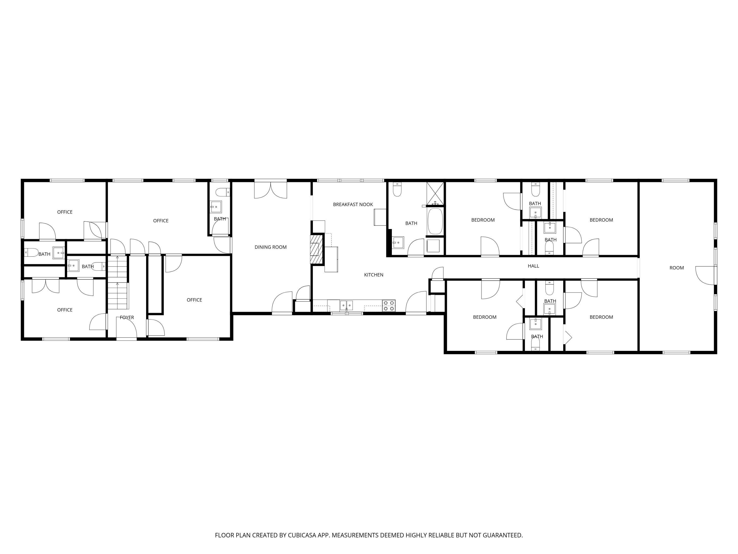
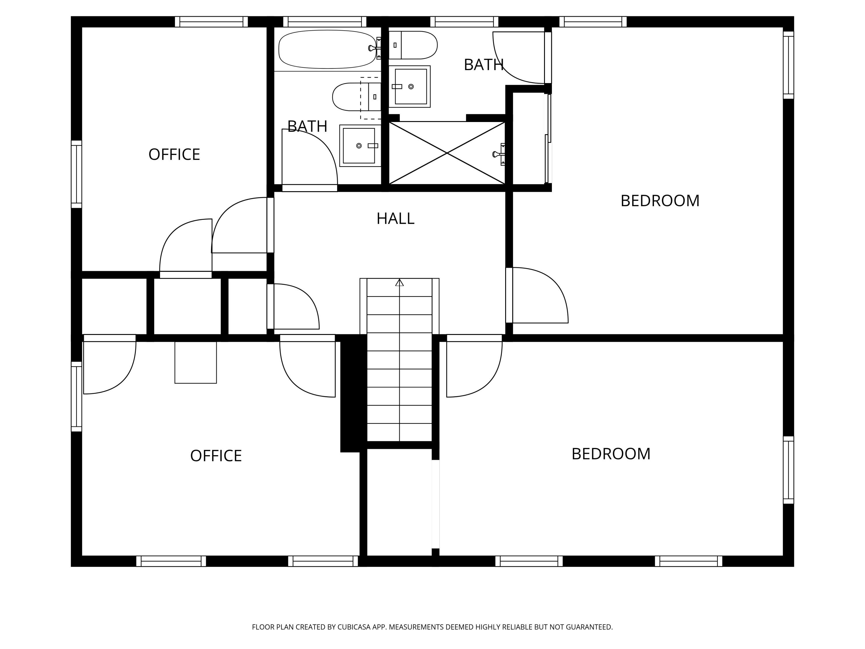
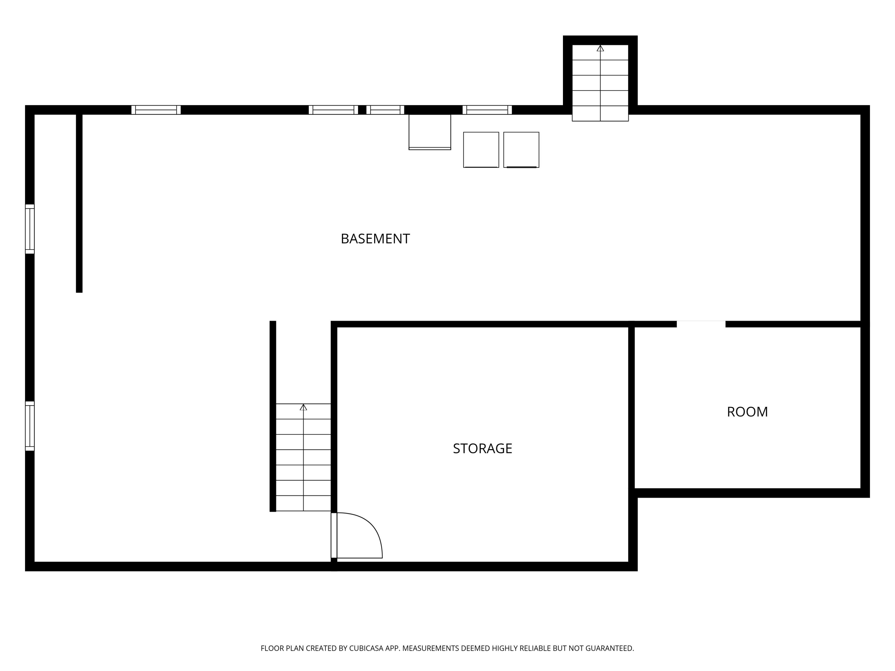
This expansive income-producing property presents a unique opportunity for investors and future end-user occupancy. Situated on 1 acre in BANGOR, the home is currently configured for group-home or supported living use, offering 8+ bedrooms, three large gathering spaces, multiple private offices for staff, 3 full bathrooms, and 7 half baths-a layout well suited for high-occupancy residential needs. An established long-term tenant is in place, providing predictable income. At the same time, the property presents a compelling option for organizations planning ahead for future expansion or relocation. Outside, ample off-street parking supports daily operations, while a private fenced backyard provides secure outdoor space-an important amenity for group living environments. The central location offers convenient access to Bangor's shopping, services, medical facilities, and major transportation routes. Recent major improvements include a renovated kitchen completed in 2025 and a new boiler installed in 2024. In addition, the building is equipped with a full sprinkler system-a significant asset given today's high installation costs and required safety standards. Properties of this scale and configuration are rarely available in the greater Bangor market. Whether you're seeking an income-producing asset or positioning for future owner occupancy, this is an offering worth consideration. Additional details available to qualified purchasers. Contact an agent for more information.

Listing Tools (detailViewNewGen)

Property Details of 913 Essex Street

Map Location

Listing data is derived in whole or in part from the Maine IDX & is for consumers' personal, non commercial use only. Dimensions are approximate and not guaranteed. All data should be independently verified. ©2026 Maine Real Estate Information System, Inc. All Rights Reserved. equal opportunity housing logo   Privacy Policy

DeWitt-Jones Realty participates in ©2026 Maine Listings Internet Data Exchange program, allowing us to display other Maine IDX Participants' listings. This website does not display complete listings. Certain listings of other real estate brokerage firms have been excluded. Mortgage figures are estimates. Check with your bank or proposed mortgage company for actual interest rates. This product uses the FRED® API but is not endorsed or certified by the Federal Reserve Bank of St. Louis.

Hi there! How can we help you?

Contact us using the form below or give us a call.

Send Us A Message:

I agree to receive marketing and customer service calls and text messages from DeWitt-Jones Realty. To opt out, you can reply 'stop' at any time or click the unsubscribe link in the emails. Consent is not a condition of purchase. Msg/data rates may apply. Msg frequency varies. Privacy Policy.

Do not fill in this field:

This site is protected by reCAPTCHA and the Google Privacy Policy and Terms of Service apply.

Hi there! How can we help you?

Contact us using the form below or give us a call.

Send Us A Message:

Do not fill in this field:

This site is protected by reCAPTCHA and the Google Privacy Policy and Terms of Service apply.

Hi there! How can we help you?

Contact us using the form below or give us a call.

Send Us A Message:

Do not fill in this field:

This site is protected by reCAPTCHA and the Google Privacy Policy and Terms of Service apply.

Do not fill in this field:

This site is protected by reCAPTCHA and the Google Privacy Policy and Terms of Service apply.

Do not fill in this field:

This site is protected by reCAPTCHA and the Google Privacy Policy and Terms of Service apply.

Do not fill in this field:

This site is protected by reCAPTCHA and the Google Privacy Policy and Terms of Service apply.

$

Do not fill in this field:

This site is protected by reCAPTCHA and the Google Privacy Policy and Terms of Service apply.